Render o imagen del proyecto Pasaje Ingenieros

Pasaje Ingenieros

Edificio con un estilo industrial único, pensado para quienes buscan algo distinto y moderno.

Renders del proyecto

Vista Exterior

Descripción render

Sobre el proyecto

Este desarrollo incluye 13 unidades exclusivas y 4 cocheras, diseñadas para combinar funcionalidad con un diseño que destaca.

9 departamentos de 1 dormitorio, 2 lofts y 2 departamentos de 2 dormitorios conforman esta propuesta, ubicados en Pasaje Ingenieros 4955, entre Quintana y Padilla.

Desarrollo perfecto tanto para quienes quieren vivir en un espacio con personalidad como para inversores que apuestan por la calidad.

Características:

La unidad se compone de 55 m² y cuenta con cocina, comedor, baño, dormitorio y balcón.

9 departamentos de 1 dormitorio

2 lofts

2 departamentos de 2 dormitorios

Inversión inicial desde X USD con entrega programada para Febrero 2027.

Estado actual del proyecto

Ubicación
Pasaje Ingenieros 4955
Unidades
13 unidades exclusivas. 2 lofts y 4 cocheras.
9 departamentos de 1 dormitorio y 2 de 2 dormitorios.
Entrega Febrero 2027

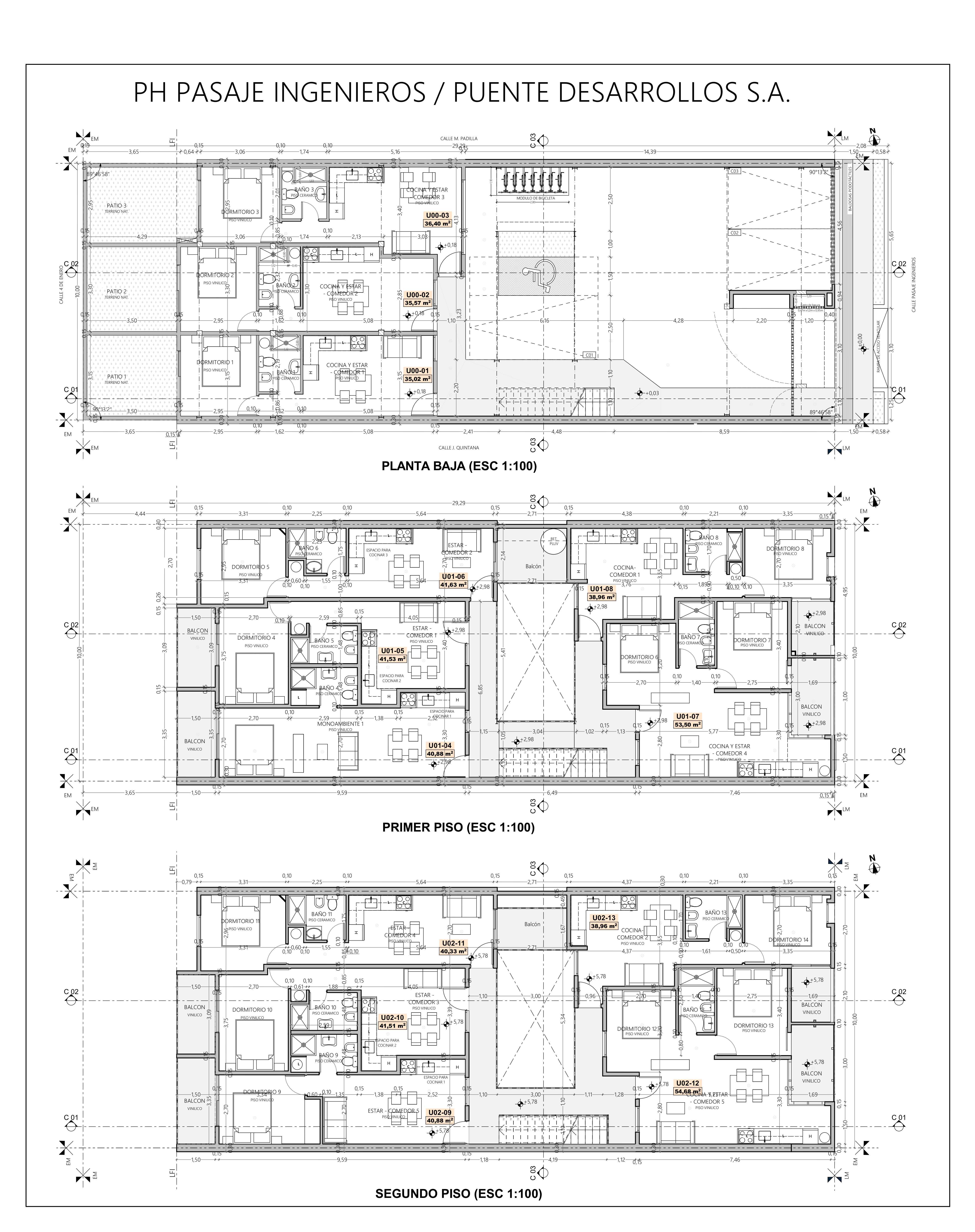
Planos del proyecto

Explorá los planos detallados de éste desarrollo y conocé la distribución de espacios en cada nivel del edificio.

Planos Pasaje Ingenieros

Planos del proyecto

Planos completos del desarrollo mostrando la distribución de espacios, unidades y diseño arquitectónico del edificio.

¿Tenés un desarrollo para comercializar?

Hablemos sobre cómo podemos potenciar tu proyecto inmobiliario con nuestra experiencia y red de contactos.

Obtené toda la información que necesitas

Descargar documentos y ubicación

Ubicación Privilegiada

Este desarrollo se encuentra en Pasaje Ingenieros 4955, entre Quintana y Padilla, Santa Fe, Argentina.

Pasaje Ingenieros 4955
Ubicacion Pasaje Ingenieros 4955, Santa Fe

Folleto completo

Planos, especificaciones, caracteristicas, etc.

Planos detallados
caracteristicas
Opciones de financiación
Descargar PDF

Unidades disponibles

Lista de unidades disponibles.

¡Descargar lista!

¿Te interesa este desarrollo?

Contactanos para más información