Imagen de fondo

Black 12

Casa de 2 dormitorios a estrenar

Renders del proyecto

Vista Exterior

Descripción render

Sobre el proyecto

Casa 4 - Barrio Privado Quiloazas es una moderna vivienda de construcción tradicional que cuenta con 2 dormitorios, baño completo, living comedor y cocina con isla. Construida con muros de ladrillo hueco, cubierta de chapa de zinc con aislación térmica, aberturas de aluminio línea Modena con vidrios de seguridad y pisos de porcelanato importado de primera marca. Las terminaciones incluyen pintura látex interior y revestimiento plástico texturado exterior, cielorrasos de Durlock, provisión de agua fría y caliente por termofusión, y sistema de calefacción con salamandra marca Tromen.

La propiedad se completa con amplios espacios exteriores que incluyen galería con asador, cochera semicubierta, sala de bomba y lavadero independiente. Entre sus principales amenidades destaca una piscina de 6.5m x 3m con solárium de piso atérmico, bomba, filtro e iluminación. La cocina cuenta con muebles de melamina, mesada de cuarzo y electrodomésticos de primeras marcas, mientras que el baño incluye revestimientos de porcelanato, artefactos marca Roca línea Mónaco y receptáculo de ducha con mampara. La propiedad cuenta con perforación propia con bomba para agua, sistema de riego por aspersión y cerco perimetral con tranquera de acceso.

Características:

Construcción de calidad superior - Muros de ladrillo, cubierta con aislación térmica, aberturas de aluminio y pisos de porcelanato importado

Piscina con solárium - Piscina de 6.5m x 3m completamente equipada con bomba, filtro, iluminación y piso atérmico

Amplios espacios exteriores - Galería con asador, cochera semicubierta, lavadero independiente y sistema de riego

Barrio privado cerrado - Ubicada en Quiloazas con tranquera de acceso y cerco perimetral completo

Inversión inicial desde X USD con entrega programada para FECHA ESTIMADA.

Estado actual del proyecto

Ubicación
Barrio privado cerrado
Unidades
X
X Niveles.
Entrega FECHA ESTIMADA

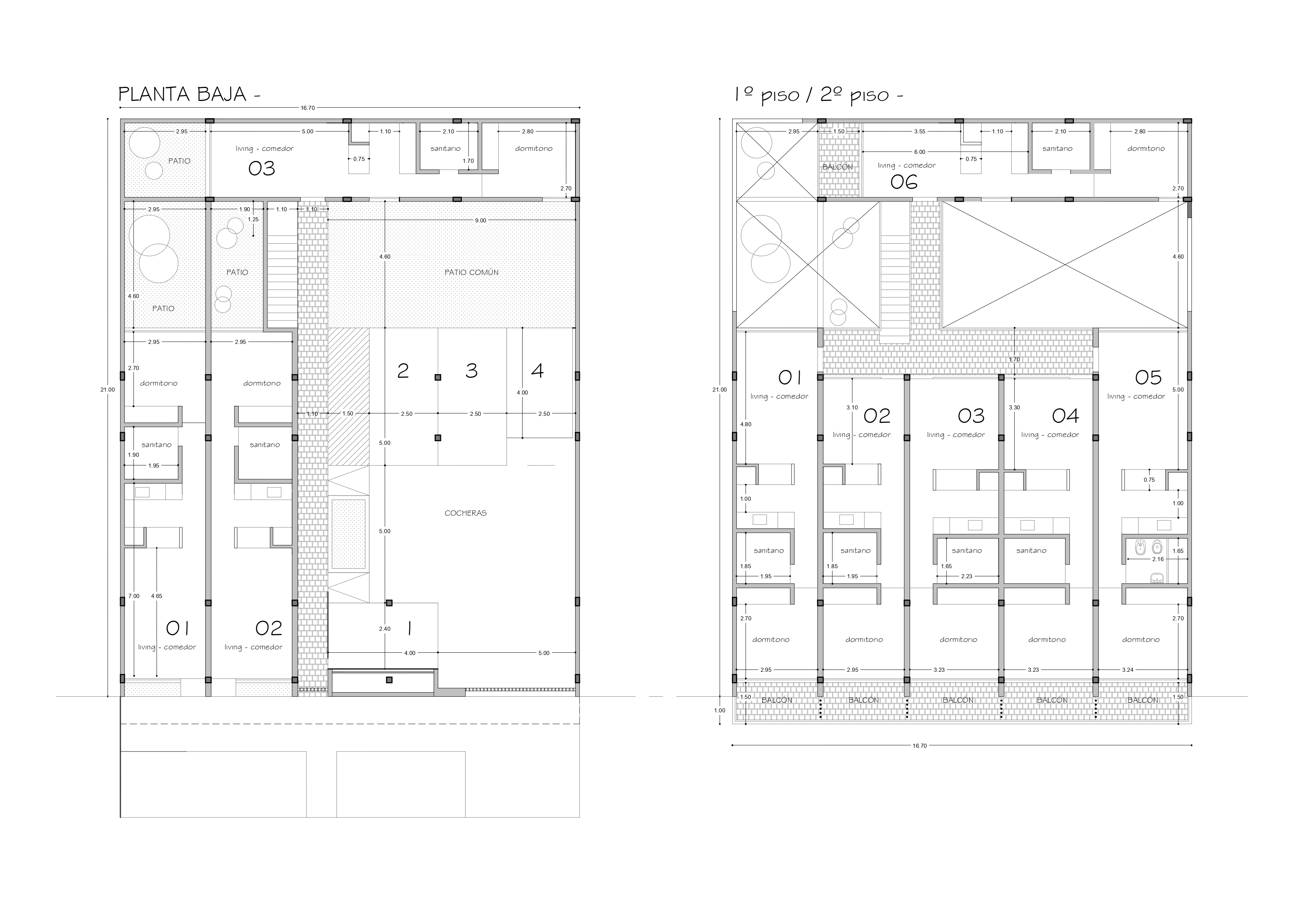
Planos del proyecto

Explorá los planos detallados de Quiloazas y conocé la distribución de espacios de la casa

Planos Quiloazas

Planos del Proyecto

Planos completos del desarrollo mostrando la distribución de espacios, unidades y diseño arquitectónico del edificio.

¿Tenés un desarrollo para comercializar?

Hablemos sobre cómo podemos potenciar tu proyecto inmobiliario con nuestra experiencia y red de contactos.

Obtené toda la información que necesitas

Descargar documentos y ubicación

Ubicación Privilegiada

El country Quiloazas se encuentra en Barrio Ubajay, Santa Fe, Argentina.

Country Quiloazas - Barrio Ubajay
Ubicacion Country Quiloazas, Barrio Ubajay

Folleto completo

Planos, especificaciones, caracteristicas, etc.

Planos detallados
caracteristicas
Opciones de financiación
Descargar PDF

Unidades disponibles

Lista de unidades disponibles.

¡Descargar lista!

¿Te interesa Boedo 2?

Contactanos para más información