Render o imagen del proyecto Hernandarias

Desarrollo Hernandarias

Departamento en pozo estilo minimalista - Almudena

Renders del proyecto

Vista Exterior

Descripción render

Sobre el proyecto

Almudena es un moderno conjunto residencial de tres niveles que ofrece departamentos en pozo con un marcado enfoque minimalista. El desarrollo cuenta con 3 unidades en planta baja, cada una con patios de uso exclusivo, y dos bloques superiores que albergan 5 unidades orientadas al norte y 1 unidad en contrafrente por nivel, todas con balcones privativos. El diseño arquitectónico se caracteriza por la utilización de materiales en bruto como hormigón visto y madera, eliminando elementos superfluos para centrarse en lo esencial y crear espacios que transmiten ligereza y amplitud.

Los interiores destacan por sus cielorrasos de hormigón a la vista, revestimientos de cemento alisado en cocinas y sanitarios, y pisos de porcelanato símil madera que aportan calidez al ambiente. La paleta de colores neutros con énfasis en blancos y grises, junto con amoblamientos de formas puras y colores claros, buscan la funcionalidad y claridad para promover la calma y el bienestar. El conjunto incluye 4 cocheras y un amplio patio común que separa los bloques, conectados mediante una escalera resuelta a través de pasarelas.

Características:

Estilo minimalista definido - Diseño que utiliza lo esencial con materiales en bruto, formas puras y paleta neutra

Conjunto de 3 niveles - Planta baja con patios exclusivos y dos niveles superiores con balcones privativos

Materiales premium - Hormigón visto, cemento alisado, porcelanatos símil madera y amoblamientos de diseño

Departamentos en pozo con finalización prevista

Inversión inicial desde X USD con entrega programada para Septiembre 2026.

Estado actual del proyecto

Ubicación
Hernandarias 1441
Unidades
X departamentos.
3 Niveles.
Entrega Septiembre 2026

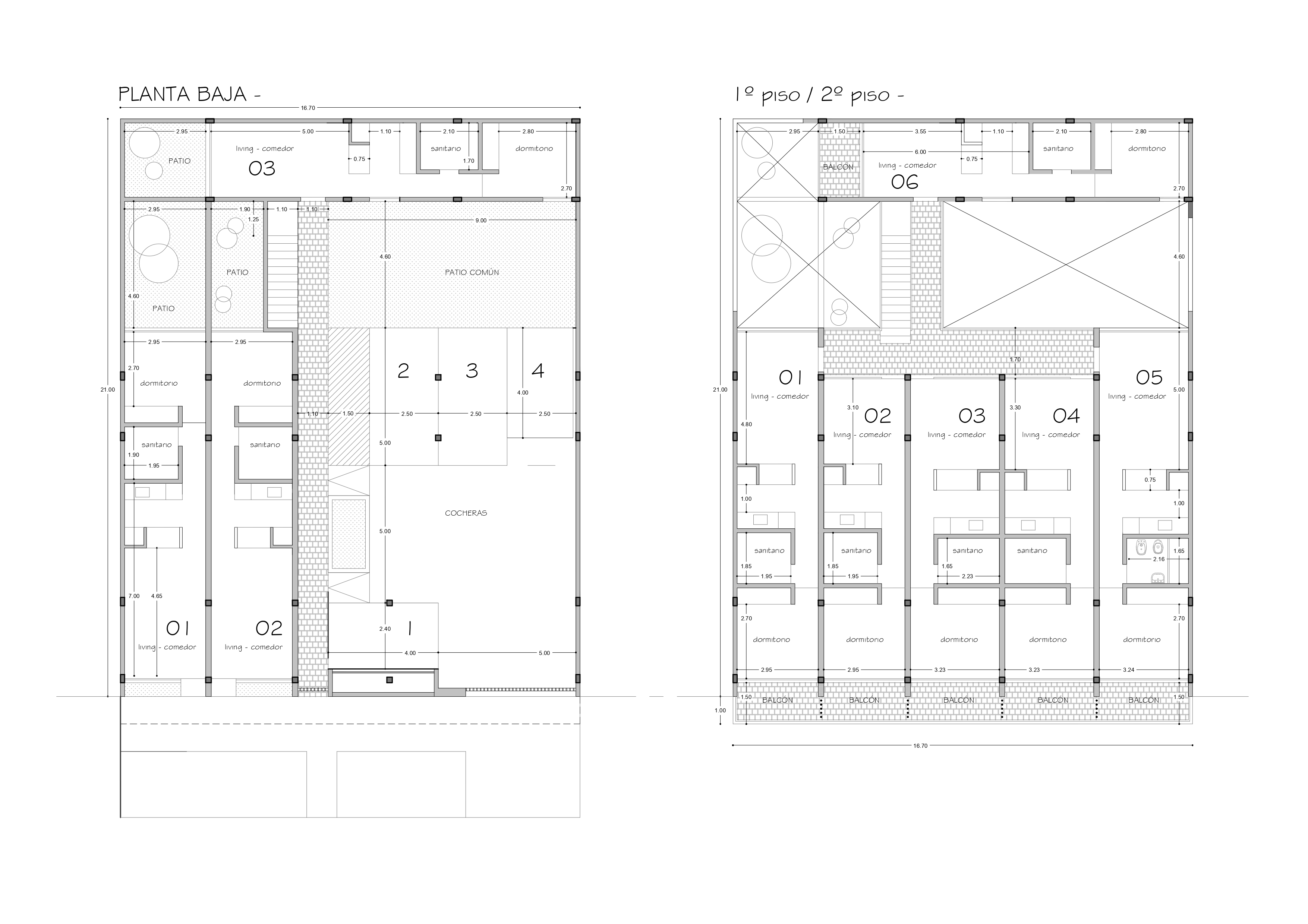
Planos del proyecto

Explorá los planos detallados de Hernandarias y conocé la distribución de los espacios.

Planos Hernandarias

Planos del proyecto

Planos completos del desarrollo mostrando la distribución de espacios, unidades y diseño arquitectónico.

¿Tenés un desarrollo para comercializar?

Hablemos sobre cómo podemos potenciar tu proyecto inmobiliario con nuestra experiencia y red de contactos.

Obtené toda la información que necesitas

Descargar documentos y ubicación

Ubicación Privilegiada

Este desarrollo se encuentra en Hernandarias 1441, Santa Fe, Argentina, en una zona de gran desarrollo comercial y residencial.

Hernandarias 1441, Santa Fe, Argentina
Ubicacion Hernandarias 1441, Santa Fe

Folleto completo

Planos, especificaciones, caracteristicas, etc.

Planos detallados
caracteristicas
Opciones de financiación
Descargar PDF

Unidades disponibles

Lista de unidades disponibles.

¡Descargar lista!

¿Te interesa este desarrollo?

Contactanos para más información